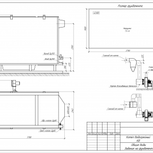
Устройство и принцип работы
Котел КВм-3.75 состоит из механической топки, шнека для подачи топлива, системы трубопровода и каркаса, покрытого теплоизоляционным материалом. Шнеком топливо транспортируется в бункер котла. Во время перемещения топливо насыщается кислородом, что способствует его полноценному горению. Из бункера топливо попадает в топку, где и происходит процесс горения. За счет выделившегося тепла происходит нагревание воды в системе трубопровода, которая уже направляется на нужды потребителя. Газы, образовавшееся в процессе горения, дважды проходят по конвективной части, а затем выводятся.
Условное обозначение
Водогрейный котел КВм-3.75 на древесных отходах, где:
- К – котел;
- В – водогрейный;
- м – механическая топка;
- 3.75 – мощность котла.
Особенности и преимущества
- Высокий показатель КПД;
- Развитая конвективная поверхность, способствующая увеличению срока службы оборудования;
- Отсутствие водоподготовки;
- Автоматизация топливоподачи и золовыведения;
- Системы сжигания топлива, адаптированные специально под ДВО;
- Компактный размер.
Размещение и установка
Котел КВм-3.75 устанавливается на фундамент и крепится анкерными болтами. Далее к нему монтируется топка и системы автоматизации, если таковые имеются. Важно установить котел ровно, используя уровень, и обеспечить доступ воздуха к системам воздухоподачи.
Собранный котел подключается к системам водоснабжения, на него устанавливается запорная арматура и КИП. Финальной стадией сборки является монтаж газовыводящей системы и установка элементов управления. После проверки сборки котла и его тестового запуска, котел готов к эксплуатации.
Эксплуатация и техническое обслуживание
После сборки и монтажа котел подключается к водопроводной системе и начинает работу. Котел КВм-3.75 работает автономно и не требует вмешательства человека в процессе своей работы. Помимо простоты использования котел КВм имеет еще и длительный срок службы с сохранением высокого показателя КПД на протяжении всего срока.
Важно отметить, что производить ремонтные работы и техническое обслуживание могут только квалифицированные специалисты, имеющие специальное разрешение. При организации технического обслуживания следует учитывать требования «Правил устройства и безопасной эксплуатации паровых и водогрейных котлов».
Комплектация
Котел КВм-3.75 доставляется отдельными блоками, которые требуют сборки. При заказе котел комплектуется всем необходимым, чтобы правильно установить прибор: запорной арматурой, контрольно-измерительными приборами, частями вентиляционной системы, а также – дымососом и золоуловителем, если есть необходимость очистки дымовых газов.
















