Устройство и принцип работы
Водогрейные котлы КВм-3.8 — твердотопливное устройство с механическими колосниковыми решетками из жаропрочного металла, которые запускаются в работу при помощи гидравлической системы. Оборудование состоит из котла и топки. Топливо закладывается в бункер, затем, механическим путем, попадает в топку с маленьким количеством кислорода. На данном этапе происходит тление. Такое устройство дает возможность испарениям из топлива не попадать в зону горения и использовать материал любой влажности. Образовавшиеся в процессе горения газы попадают в следующую камеру, где под действием электрической искры загораются и проходят дважды через конвективную часть, что позволяет полностью отдать тепло. Твердый топочный материал горит при одновременном движении по колосникам, горение заканчивается, когда топливо превращается в золу. Продукт горения удаляется из системы механическим путем, посредством движения колосниковой части, в отсек шлакоудаления. Благодаря догоранию углекислого газа, снижаются риски загрязнения атмосферы. Раздельное горение летучих веществ и твердых фракций дает оборудованию большое преимущество и отличает его от других водогрейных установок. Котел оснащен системой дополнительной подачи воздуха, что позволяет повысить КПД до 90%. Сетевым насосом обеспечивается принудительная циркуляция воды, а подпитка происходит при помощи подпиточного насоса. Гидравлическая система оборудования препятствует возникновению накипи, позволяя использовать воду любой жесткости, не применяя химических веществ.
Условное обозначение
Водогрейный котел КВм-3.8 на древесных отходах, где:
- К – котел;
- В – водогрейный;
- м – механическая топка;
- 3.8 – мощность котла.
Особенности и преимущества
- КПД более 80% обеспечивается за счет большой топливной камеры и системы вентиляции, обеспечивающих полноценное и равномерное сгорание топлива, что помогает рационально использовать и экономить горючее;
- Низкая температура газов сохраняется за счет развитой конвективной поверхности, что увеличивает срок службы оборудования;
- Устойчивости к накипеобразованию способствует гидравлическая схема, предотвращающая застои и появление накипи, образование которой снизило бы КПД при длительном использовании котла;
- Низкие требования к качеству воды избавляют от необходимости подготавливать воду перед использованием;
- Механизация процесса минимизирует участие человека и облегчает труд рабочих;
- Минимальные монтажные работы позволят сэкономить время и средства при установке котельного оборудования.
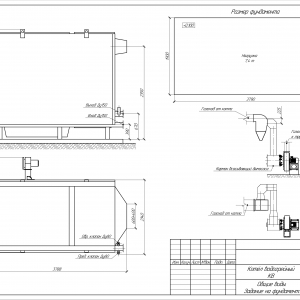
Размещение и установка
Котел КВм-3.8 на древесных отходах поставляется в удобном двублочном исполнении в полной заводской сборке, и легко стыкуются при монтаже. Устанавливается на предварительно выровненную поверхность без необходимости в строительстве специального фундамента. Крепится к поверхности при помощи анкерных болтов.
Монтаж котельного оборудования производится с соблюдением СНиП 11-35-76 «Котельные установки» и «Правил устройства и безопасной эксплуатации паровых и водогрейных котлов». Установка и пуско-наладочные работы выполняют специалисты, которые имеют разрешение на проведение данных работ.
Эксплуатация и техническое обслуживание
За счет механической топки и системы золоотведения, котел КВм-3.8 работает автономно. Все ремонтные работы, включая технические осмотры, должны проводиться квалифицированными специалистами, которые имеют специальное разрешение. При организации технического обслуживания следует учитывать требования «Правил устройства и безопасной эксплуатации паровых и водогрейных котлов».
Комплектация
Котел КВм-3.8 доставляется отдельными блоками, которые требуют сборки. При заказе котел комплектуется всем необходимым, чтобы правильно установить прибор: запорной арматурой, контрольно-измерительными приборами, частями вентиляционной системы, а также – дымососом и золоуловителем, если есть необходимость очистки дымовых газов.













