Устройство и принцип работы
Конструкция водогрейного котла КВм-4.05 состоит из двух частей: блока котла и механической топки, обшитых в единый корпус из газоплотной стали с теплоизоляционным материалом. В котельном блоке размещена трубная система с конвективной поверхностью нагрева, в топке – колосниковая решетка с отверстиями для провала остатков горения в зольник, который расположен под топкой.
Для котлов КВм на отходах ДВО наш завод производит механические топки:
- ТШПМ с шурующей планкой;
- ТЛПХ прямого хода с ленточной колосниковой решеткой;
- ТЛЗМ обратного хода с забрасывателем;
и полумеханические топки:
- ЗП РПК с наклонными колосниками и пневмомеханическим забрасывателем ЗП;
- РПК с наклонными колосниками.
В котельную древесные отходы поступают при помощи механизированной топливоподачи – это могут быть скиповые подъемники, либо скребковые или ленточные транспортеры. Далее топливо выгружается в забрасыватели, которые поднимаются к бункерам топок и опрокидывают в них содержимое. Из бункера куски древесных отходов порционно проваливаются в топку на колосниковую решетку. Шлак и зола прогоревшего дерева падают в зольник через отверстия колосниковой решетки, и вычищаются при помощи скребковых механизмов.
Вода в котле движется непрерывно, что исключает образование застойных зон, перегрев поверхностей, гарантирует правильный теплосъем, отсутствие накипи и соответственно не нуждается в водоподготовке.
Условное обозначение
Водогрейный котел КВм-4.05 на древесных отходах, где:
- К – котел;
- В – водогрейный;
- м – механическая топка;
- 4.05 – мощность котла.
Особенности и преимущества
- КПД более 80% обеспечивается за счет большой топливной камеры и системы вентиляции, обеспечивающих полноценное и равномерное сгорание топлива, что помогает рационально использовать и экономить горючее;
- Низкая температура газов сохраняется за счет развитой конвективной поверхности, что увеличивает срок службы оборудования;
- Устойчивости к накипеобразованию способствует гидравлическая схема, предотвращающая застои и появление накипи, образование которой снизило бы КПД при длительном использовании котла;
- Низкие требования к качеству воды избавляют от необходимости подготавливать воду перед использованием;
- Механизация процесса минимизирует участие человека и облегчает труд рабочих;
- Минимальные монтажные работы позволят сэкономить время и средства при установке котельного оборудования.
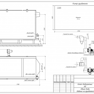
Размещение и установка
Монтаж оборудования производится специалистом в соответствии техникой безопасности. Монтируется котел КВм-4.05 к бетонному фундаменту крепежными анкерами.
Важно! При монтаже котла нужно использовать уровень, очень важно установить оборудование ровно и организовать доступ воздуха к системам. Перед запуском оборудования в работу, следует проверить циркуляцию воды, наличие напряжения.
Эксплуатация и техническое обслуживание
За счет механической топки и системы золоотведения, котел КВм-4.05 работает автономно. Все ремонтные работы, включая технические осмотры, должны проводиться квалифицированными специалистами, которые имеют специальное разрешение. При организации технического обслуживания следует учитывать требования «Правил устройства и безопасной эксплуатации паровых и водогрейных котлов».
Комплектация
Котел КВм-4.05 доставляется отдельными блоками, которые требуют сборки. При заказе котел комплектуется всем необходимым, чтобы правильно установить прибор: запорной арматурой, контрольно-измерительными приборами, частями вентиляционной системы, а также – дымососом и золоуловителем, если есть необходимость очистки дымовых газов.














